Leased

Displaying: of 9

Agent Details

Arthur Dislakis

Share

Contemporary, Compact & Convenient!

Leased for $400

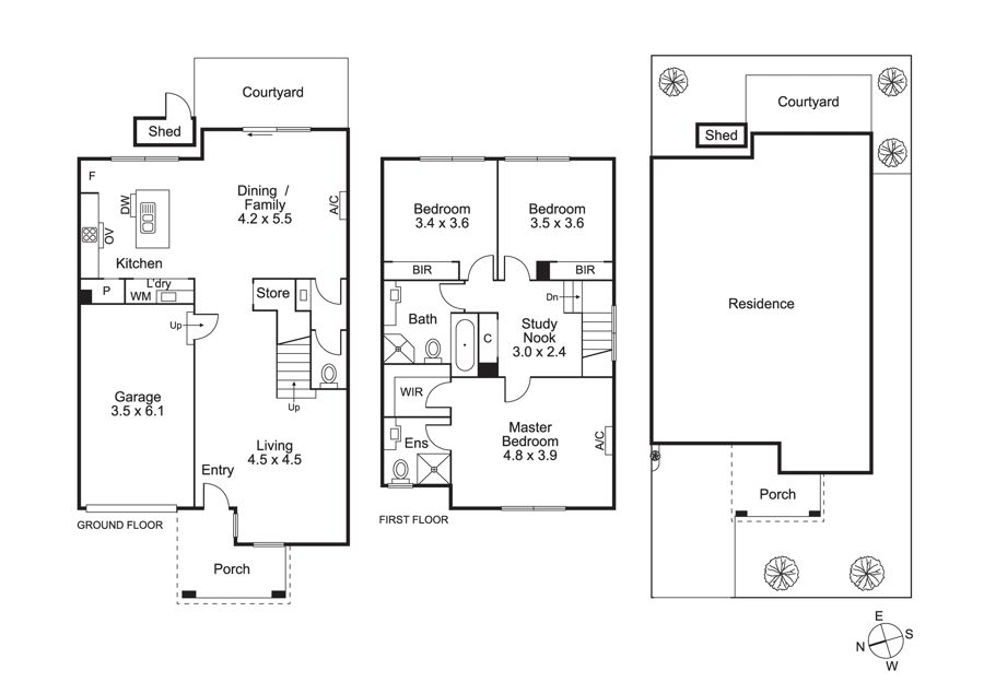
1/20 Leonie Close, South Morang

3
2
1
No

Profile

Centrally located within walking distance to South Morang & Marymede primary and secondary, Gorge Road & Axis shopping centres, short commute to Westfield & South Morang train station, with Middle Gorge within walking distance, bus routes to RMIT, La trobe train stations to CBD and beyond it doesn't get any more central than this.

High ceilings greet you upon entry, open plan separate lounge flows onto family living with dining and a stunning Cesar Stone kitchen with microwave provision, pantry, provision for dishwasher and quality stainless steel appliances
.
Three generous bedrooms adorn the upper level main with walk in robe and en suite, others with built in robes, main bathroom and small landing area complete the accommodation.

Features include, separate laundry, 3 toilets, ducted heating, wall mounted air-conditioning & heating, loads of storage, landscaped front & rear gardens, remote internal access single garage, private and secluded in a cul de sac.

Ideally suited to those of us seeking our first home, investment or young downsizers with an appetite for weekend free living. Entry level opportunity that is a must see.

Features

20774758
Property ID
3
Bedrooms
2
Bathrooms
1
Garage
21 Square approx.
Building Size
Air Conditioning
Built In Robes
Courtyard
Dishwasher
Ducted Cooling
Ducted Heating
Evaporative Cooling
Fully Fenced
Gas
Hot Water Service
Remote Garage

Send Enquiry

Your Details
Your Enquiry
  1. Please describe how we can be of assistance to you.

  2.  

    Would you like to join our mail list?

Submit