Leased

Displaying: of 11

Agent Details

Arthur Dislakis

Share

Brand New - Hampton Style Living

Leased for $460

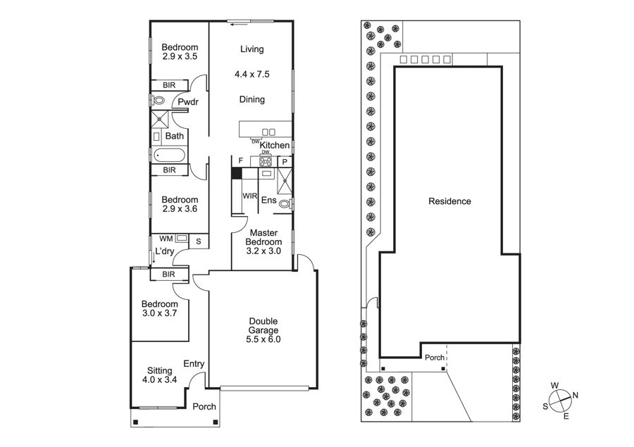
36 Burgess street, Mernda

4
2
No

Profile

Styled to perfection this brand new recently completed family home only days old , and surrounded by new homes in a quiet yet convenient cul de sac.

Surrounded by recreation and convenience, the home is a short commute from the vibrant cafes, restaurants and Mernda Village, Westfield & Coles and city-bound trains, buses and walking trails and short commute to the CBD and local Universities.

Brilliant Cesar stone kitchen has extensive cabinetry, huge island bench, pantry, dishwasher, huge oven and gas cooktop and compliments a sumptuous casual living area.

Four bedrooms , two bathrooms, high ceilings, engineered timber flooring add to the ambience and space and the front lounge can be used as a work from home study or home business application.

Loads of storage throughout, remote double car accommodation, evaporative cooling and heating, landscaped front and rear gardens and a private back yard provide an overwhelming sense of quality and home.

Inspections will delight.

Features

20858540
Property ID
4
Bedrooms
2
Bathrooms
314 sqm approx.
Land Size
23 Square approx.
Building Size
Air Conditioning
Alarm System
Built In Robes
Courtyard
Dishwasher
Ducted Cooling
Ducted Heating
Evaporative Cooling
Fully Fenced
Gas Heating
Gas
Hot Water Service
New Construction
Remote Garage
Secure Parking

Send Enquiry

Your Details
Your Enquiry
  1. Please describe how we can be of assistance to you.

  2.  

    Would you like to join our mail list?

Submit