Leased

Displaying: of 6

Agent Details

Arthur Dislakis

Share

La Trobe, Tram & short commute to CBD.

Leased for $350

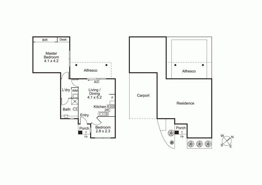
2/30 Highland Street, Kingsbury

2
1
1
No

Profile

Walking distance to Latrobe University, tram, Kingsbury primary, short commute to RMIT, Reservoir and Bundoora shopping precincts, direct access to CBD, cafes, bars, restaurants at your doorstep why would you look elsewhere.
Tucked away in a quite street this superb unit boasts two bedrooms, huge main, each with engineered timber flooring, to compliment hardwood flooring throughout, high ceilings, light filled living areas with downlights create a sense of space and comfort.


Central kitchen, with stainless steel appliances compliments the casual living and dining with direct access to outdoor courtyard equipped with undercover alfresco and the bamboo fencing adds to allure of this peaceful and private secluded all year round convenience.

Featuring split system heating and cooling in living room, laundry, study desk in main bedroom allows for work from home application, and single car carport, all on a flat, easy to navigate single level.

Ideally suited to individuals, young couples, students or downsizers who need to be close to family in the heart of it all.

Features

20865533
Property ID
2
Bedrooms
1
Bathrooms
1
Carports
12 Square approx.
Building Size
Built In Robes
Courtyard
Dishwasher
Floorboards
Fully Fenced
Gas
Hot Water Service
Outdoor Ent
Secure Parking
Split System

Send Enquiry

Your Details
Your Enquiry
  1. Please describe how we can be of assistance to you.

  2.  

    Would you like to join our mail list?

Submit