Leased

Displaying: of 14

Agent Details

Arthur Dislakis

Share

Contemporary Living in Prime Location

Leased for $500

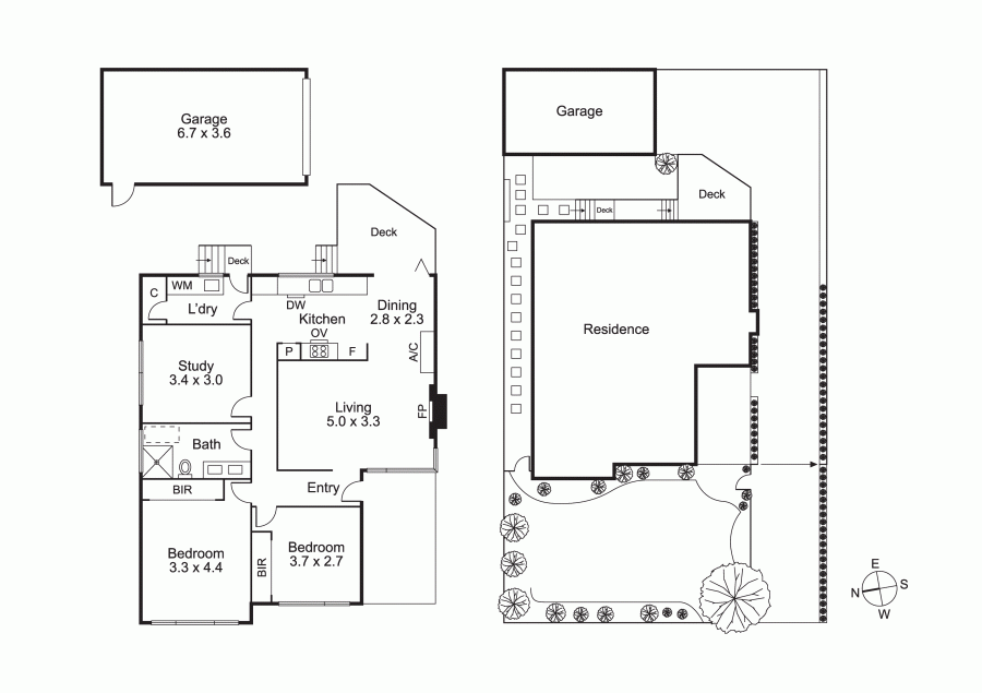
1-10 Lincoln Street, Watsonia North

3
1
1
No

Profile

Highly sought after location in the tightly held Watsonia North precinct this updated classic provides modern comfort with conveniences rarely found in this established leafy suburb.
High ceilings, gleaming hardwood flooring, and fireplace upon entry into the living area, sunbathed in natural light and overlooking the streetscape and ample front yard.
Three spacious bedrooms ideally suited to those of us just starting out, downsizing close to family or young professionals with an work from home mindset within walking distance to the areas best amenities.
Luxurious bathroom, stunning bright kitchen with stainless steel appliances and servery with extends to and outdoor decking for entertaining friends and family all year round.

Features include single lock up garage, ducted heating , refrigerated cooling, downlights, timber decking and so much more. Inspection will delight.

Located Walking distance to :
Watsonia North Primary
Grimshaw St Early Learning
Loyola College
Watsonia North Primary

Close to:
Greensborough Shopping Centre
Greensborough Train station
Parade College

Features

20902903
Property ID
3
Bedrooms
1
Bathrooms
1
Garage
Air Conditioning
Built In Robes
Courtyard
Deck
Ducted Heating
Fully Fenced
Gas
Hot Water Service
Outdoor Ent
Remote Garage
Secure Parking
Split System

Send Enquiry

Your Details
Your Enquiry
  1. Please describe how we can be of assistance to you.

  2.  

    Would you like to join our mail list?

Submit