Leased

Displaying: of 10

Agent Details

Arthur Dislakis

Share

Hawkstowe Prestige

Leased

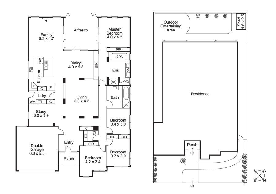
39 Le Page Run, South Morang

4
2
2
No

Profile

It will be walking distance to the new stop, cafes, restaurants, adjoining parkland, and bus routes to RMIT and beyond, as it is located in Hawkstowe Estate, close to the new Coles, Westfield Shopping, and South Morang train station.

A wide entrance hall greets you, with hardwood flooring leading to a large and spectacular open plan living, dining, and kitchen area with a breakfast bar.

Serviced by large bench tops, premium appliances, and pantry - nothing has been overlooked.

Bedroom accommodation includes an enormous master with a huge WIR and a generous ensuite with a lavish double shower.

Three additional bedrooms all have BIRs, plus study. Indoor and outdoor living areas are serviced by massive dual glass bi-fold doors, direct access to an under-roof alfresco undercover deck, perfect for all year-round living and entertaining.

Features include ducted heating and cooling throughout, high and square set ceilings, plantation shutters, a stack stone façade, double vanity bathrooms, an alarm system, privacy, and well established and manicured gardens front and rear, all on a 550 m2 parcel of prime real estate.

Features

21475231
Property ID
4
Bedrooms
2
Bathrooms
2
Garage
550 sqm approx.
Land Size
263 sqm approx.
Building Size
Air Conditioning
Alarm System
Built In Robes
Deck
Dishwasher
Ducted Heating
Evaporative Cooling
Floorboards
Fully Fenced
Gas
Hot Water Service
Outdoor Ent
Remote Garage
Secure Parking
Shed
Split System
Study

Send Enquiry

Your Details
Your Enquiry
  1. Please describe how we can be of assistance to you.

  2.  

    Would you like to join our mail list?

Submit