Sold

Displaying: of 11

Agent Details

Arthur Dislakis
Sales

Share

Stylish Low-Maintenance Living in a Lifestyle Location!

Sold for $630,000

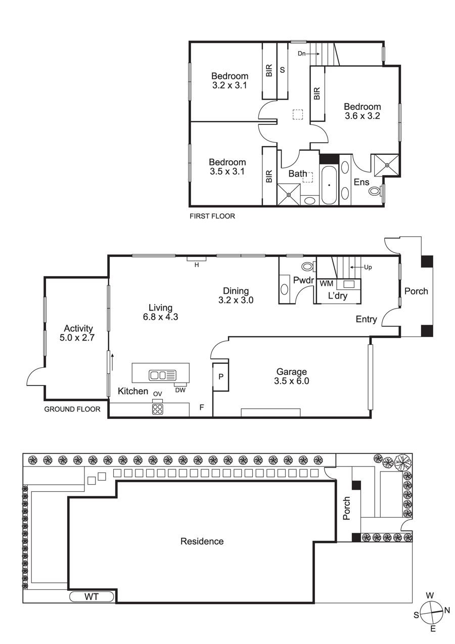
43 A Gordons Road, South Morang

3
2
1

Profile

Tailor-made for first-home buyers, smart investors, and young downsizers, this beautifully presented 3-bedroom, 2-bathroom residence combines modern finishes with a superbly connected South Morang address.

Tucked away in a peaceful cul-de-sac at the end of Gordons Road, the home offers the perfect retreat while still placing you right at the heart of convenience.

Step inside to discover:

A modern stone-bench kitchen that is perfect for entertaining or daily meals, featuring high-quality appliances, sleek cabinetry, and ample prep space.

Three generous bedrooms, including a private master suite designed for comfort.

Two stylishly appointed bathrooms with modern fixtures.

A secure single garage plus extra off-street parking, adding rare flexibility for families or guests.

But the lifestyle here is what truly sets this property apart. Within walking distance of the lush Hawkstowe Park, you'll enjoy scenic walking trails, tranquil open spaces, and endless opportunities to relax outdoors. A short commute to Hawkstowe Station ensures effortless city connections, while everyday convenience is covered with Westfield Plenty Valley just minutes away, home to a dynamic mix of shopping, dining, and entertainment.

For families, the area is rich with respected schools, including Marymede Catholic College, plus a host of nearby childcare centres and primary schools. Social life is also on your doorstep, with vibrant cafés, bars, and restaurants providing everything from your morning coffee to a night out with friends.

Blending modern low-maintenance living with unbeatable convenience, this is a home that doesn't just tick the boxes it elevates your lifestyle.

Features

21558232
Property ID
3
Bedrooms
2
Bathrooms
1
Garage
Built In Robes
Courtyard
Ducted Heating
Evaporative Cooling
Fully Fenced
Gas
Hot Water Service
Outdoor Ent
Secure Parking

Send Enquiry

Your Details
Your Enquiry
  1. Please describe how we can be of assistance to you.

  2.  

    Would you like to join our mail list?

Submit